Lublin, LSM, os. Konopnickiej

Mieszkanie na sprzedaż

Opis nieruchomości

nieruchomości Lublin*
Polecamy do sprzedaży atrakcyjnie położone, słoneczne mieszkanie w niskim budownictwie na osiedlu Konopnickiej-dzielnica LSM.
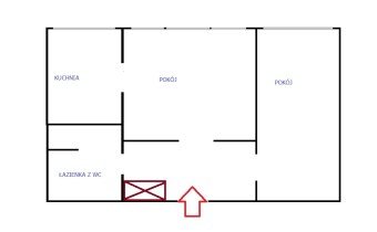
W skład mieszkania wchodzą dwa pokoje, kuchnia, przedpokój i łazienka razem z WC.
Do mieszkania przynależy piwnica o powierzchni 2,92 m2.
Dzielnica jest pełna zieleni i posiada doskonale rozwiniętą infrastrukturę oraz bardzo dobry dojazd do pozostałych dzielnic Lublina.
Mieszkanie sprawdzi się idealnie jako lokum do zamieszkania, bądź też jako inwestycja pod wynajem (niedaleko do uczelni: KUL, UMCS, UP czy Politechniki Lubelskiej).
Zapraszamy do osobistego zapoznania się z ofertą.

1. O P I S  B L O K U  =   MATERIAŁ BUDOWLANY:WP, budynek ocieplony,     WINDA:nie
2. O P I S  M I E S Z K A N I A  =  ROZKŁAD:pokój dzienny przejściowy do widnej kuchni,   BALKON:brak,  CZYNSZ: 497 zł/1 OS.,  OKNA:PCV-nowe,  POZOSTAŁE INF.:mieszkanie ciepłe-środkowe.
- POKOJE:: 2,   PODŁOGI: parkiet,   INF. DODATKOWE:duży pokój można połączyć z kuchnią
- KUCHNIA:: WIDNA,  ŚCIANY:glazura, malowane,  PODŁOGA:panele,    INF. DODATKOWE:szafki
- ŁAZIENKA I WC:: RAZEM,  ŚCIANY: glazura,  PODŁOGA:terakota,    INF. DODATKOWE:wanna,
- PRZEDPOKÓJ:: ŚCIANY:malowane,  PODŁOGA: panele,   INF. DODATKOWE:wnęka na szafę
3. S T A N  P R A W N Y  =odrębna własność lokalu mieszkalnego
4. T E R M I N   W Y D A N I A =mieszkanie wolne
5. G A R A Ż  =brak, możliwość parkowania za szlabanem, wjazd tylko dla mieszkańców

Nota prawna

Opis oferty zawarty na stronie internetowej sporządzany jest na podstawie oględzin nieruchomości oraz informacji uzyskanych od właściciela, może podlegać aktualizacji i nie stanowi oferty określonej w art. 66 i następnych K.C.

Szczegóły oferty

Symbol oferty 902-MS-32945
Powierzchnia 32,10 m²
Powierzchnia użytkowa 32,10 m²
Liczba pokoi 2
Piętro 3
Rodzaj budynku blok
Liczba pięter w budynku 4
Piwnica 2,95 m²
Stan prawny Odrębna własność lokalu
Mies. czynsz admin. 467 PLN
Okna PCV
Balkon brak
Gaz tak - miejski
Woda ciepła - piecyk gazowy
Otoczenie osiedle
Ogrzewanie miejskie
Usytuowanie jednostronne
Klucze tak

Lokalizacja

Kalkulator kredytowy

PLN
%
Wysokość raty

Kalkulator kosztów

PLN
PLN
PLN
PLN
PLN
PLN
%
PLN
Podatek od czynności cywilno-prawnych
Taksa notarialna (opłata notarialna)
VAT od taksy notarialnej (opłaty notarialnej)
Wniosek do WKW
VAT od wniosku do WKW
Prowizja agencji nieruchomości
VAT od prowizji agencji nieruchomości
Wypisy aktu notarialnego - około
RAZEM (cena + opłaty)

Podobne oferty

mieszkanie na sprzedaż - Lublin, Śródmieście, Centrum

mieszkanie na sprzedaż

Lublin, Śródmieście, Centrum
3 pokoje 60,00 m2 5 833,33 zł/m2
mieszkanie na sprzedaż - Lublin, Bronowice

mieszkanie na sprzedaż

Lublin, Bronowice
2 pokoje 42,60 m2 7 042,25 zł/m2
mieszkanie na sprzedaż - Lublin, Czechów Północny

mieszkanie na sprzedaż

Lublin, Czechów Północny
1 pokój 28,69 m2 14 987,80 zł/m2
mieszkanie na sprzedaż - Lublin, LSM, os. Konopnickiej

mieszkanie na sprzedaż

Lublin, LSM, os. Konopnickiej
2 pokoje 32,00 m2 13 093,75 zł/m2

Napisz do nas

Proszę wypełnić to pole
Proszę wypełnić to pole
Proszę wypełnić to pole
Proszę wypełnić to pole
Trwa wysyłanie...

Ta strona wykorzystuje pliki cookies w celach statystycznych oraz w celu dostosowania naszych serwisów do indywidualnych potrzeb klientów. Zmiany ustawień dotyczących plików cookie można dokonać w dowolnej chwili modyfikując ustawienia przeglądarki. Korzystanie z tej strony bez zmian ustawień dotyczących cookies oznacza, że będą one zapisane w pamięci urządzenia.

rozumiem